ich freue mich, dass Sie zu unserer Webseite gefunden haben und möchte Sie herzlich willkommen heißen.
Regis-Breitingen mit seinen Ortsteilen Ramsdorf, Hagenest und Wildenhain liegt 35 km südlich von Leipzig direkt an der Grenze zu Thüringen. Im Neuseenland inmitten von viel Grün gelegen, können Sie sich an einem angrenzenden Naturschutzgebiet ebenso erfreuen wie am herrlichen Haselbacher See. Bis nach Altenburg mit seinem Schloß sind es nur 15 km und auch Leipzig ist in einer halben Stunde mit der S-Bahn erreichbar. Dank einer günstigen Autobahnanbindung in der Nähe ist auch Chemnitz schnell und problemlos zu erreichen.
Regis-Breitingen verfügt neben seiner über 1000- jährigen Geschichte über eine sehr gute Infrastruktur mit Kita, Grund -und Oberschule, einer tollen Sportstätte sowie einem schönen Freibad.
Es gibt ein reges Vereinsleben und ein sehr gutes Miteinander in unserer Stadt.
Es gibt viele Gründe unsere Kleinstadt zu besuchen oder sogar seinen Lebensmittelpunkt hier zu verankern.
Ich freue mich auf Sie und lade Sie ein, sich hier selbst einen Eindruck zu verschaffen und wünsche Ihnen viel Spaß beim Lesen.
Ihr Jörg Zetzsche -Bürgermeister-
Mit Bescheid vom 23.09.2025 wurde das Fördergebiet „Kernstadt Regis“ (siehe Lageplan) in das Bund-Länder-Programm „Wachstum und nachhaltige Erneuerung“ (WEP), Programmteil Aufwertung, aufgenommen. Damit verbunden ist ein Finanzrahmen mit einem Gesamtbudget von 14,98 Mio. Euro für 14 Einzelmaßnahmen lt. dem für den Programmantrag erstellten Ortsentwicklungskonzept vom 10.01.2025, mit einem Durchführungszeitraum bis 2038. Die Städtebaufördermittel setzen sich jeweils aus einem Drittel von Bund, Land und Stadt zusammen, somit sind seitens der Stadt Regis-Breitingen ca. 5 Mio. Euro mit bereit zu stellen. Aufgrund der kritischen Haushaltlage wurde eine zusätzliche Stützung des städtischen Eigenanteils beim Freistaat Sachsen beantragt.
Im Aufnahmejahr 2025 wurden zunächst Finanzhilfen in Höhe von 1.902 T€, somit ein vorläufiges Fördervolumen von 2.853 T€ bewilligt. Die restlichen Mittel des Gesamtbudgets werden jährlich je nach Umsetzungsstand der Einzelmaßnahmen und deren Finanzhilfebedarf angemeldet und bereit gestellt. Schwerpunktmaßnahmen sind:
- die Oberschule
- die Freilichtbühne

- das Vereinshaus „Alte Turnhalle“
- der Kirchteich
- die Pleißebrücke
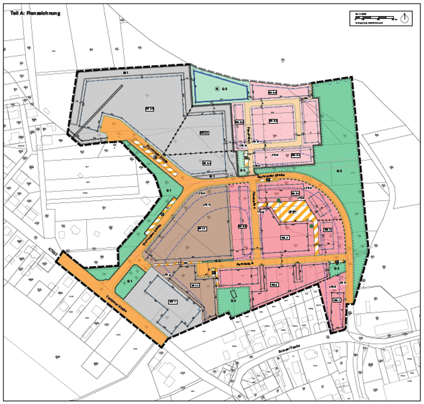
Der Bebauungsplan „Blumrodaer Straße, Regis“ ist auf der Zielgeraden
Vom Beschluss 02/24/2021 am 28.10.2021 (Auftragsvergabe Planungsleistungen zur Umnutzung des Gewerbegebietes in ein Mischgebiet) bis zur öffentlichen Auslegung des B-Planes im November 2025, sind nun 4 Jahre vergangen. Da im Vorfeld alle Träger öffentlicher Belange und Behörden in die überarbeitete Planung einbezogen wurden, erwarten wir keine wesentlichen Änderungen des jetzt vorliegenden Planes.
Wir suchen jetzt Interessenten und Investoren für die Wohnbau- und Gewerbeflächen.
Bitte melden Sie sich direkt beim Bürgermeister Jörg Zetzsche Tel. 034343 /718 0 oder per E-Mail: buergermeister@stadt-regis-breitingen.de.

finden Sie HIER!
Auf der Seite der Stadtverwaltung gibt es neu einen VERANSTALTUNGSKALENDER.
Aufgrund erhöhtem Anfrageaufkommen bittet die Kämmerei darum, Anfragen zu Grundsteuerbescheiden nur per e-Mail an folgende e-Mail-Adresse zu senden: fraudressel@stadt-regis-breitingen.de.
Die Termine der Bürgersprechstunden der Deutschen Bahn im Rathaus sowie weitere Informationen zu den Bauarbeiten im Bereich des Bahnhofes finden Sie HIER! 
Stadt Regis-Breitingen
Rathausstraße 25
04565 Regis-Breitingen
034343-718-0
034343-718-30
info@stadt-regis-breitingen.de
Öffnungszeiten
| Dienstag: | Donnerstag: |
| 09.00 - 12.00 Uhr | 09.00 - 12.00 Uhr |
| 14.00 - 18.00 Uhr | 14.00 - 17.00 Uhr |
Bürgerpolizist für Regis-Breitingen
Polizeihauptmeister Benito Bergander
Polizeistandort Kitzscher
Ernst-Schneller-Straße 1
04567 Kitzscher
Tel.: 03433 7901-30
Sprechzeiten im Rathaus Regis-Breitingen, Rathausstraße 25 im Erdgeschoss Zi. 3
Dienstag 09:00 – 12:00 Uhr
Donnerstag 14:00 – 17:00 Uhr
Tel.: 034343/ 718-20
Mobil: 0173/9618468
E-Mail: benito.bergander@polizei.sachsen.de
Sollte der Polizeistandort nicht besetzt oder Ihr Bürgerpolizist nicht erreichbar sein, wenden Sie sich in dringenden Fällen bitte an das Polizeirevier Borna.
Tel.: 03433 2440
E-Mail: gs.pr-bn@polizei.sachsen.de
| Monat | Technischer Ausschuss | Verwaltungsausschuss | Stadtrat |
|---|---|---|---|
| Januar | 08.01.2026 | 15.01.2026 | 29.01.2026 |
| Februar | 05.02.2026 | 12.02.2026 | 26.02.2026 |
| März | 05.03.2026 | 12.03.2026 | 26.03.2026 |
| April | 09.04.2026 | 16.04.2026 | 23.04.2026 |
| Mai | 05.05.2026 | 07.05.2026 | 28.05.2026 |
| Juni | 04.06.2026 | 11.06.2026 | 25.06.2026 |
| Juli | Sommerpause | ||
| August | 06.08.2026 | 13.08.2026 | 27.08.2026 |
| September | 03.09.2026 | 10.09.2026 | 24.09.2026 |
| Oktober | 08.10.2026 | 15.10.2026 | 29.10.2026 |
| November | 05.11.2026 | 12.11.2026 | 26.11.2026 |
| Dezember | 03.12.2026 | 10.12.2026 | 17.12.2026 |











